2004 Honda Accord Wiring Diagram - 2004 Honda Accord Ex Wiring Diagram Wiring Diagram Tuck Data A Tuck Data A Disnar It / Honda accord cars are available in two body versions:. Please select the exact year of your honda accord to view your vehicle sepecific diagram. Hello, anyone got a wiring diagram for accord 2004 2.0 petrol? Hello, i have an instrument cluster taken from a 2004 honda accord and am trying to power it outside of the car. Drive accord forum, a community where honda accord owners can discuss reviews, service, parts, and share mods. Honda accord cars are available in two body versions:

Need o2 sensor wiring as i am getting no supply voltage at the sensor connector. I think the 2003 and 2005 are the same as 2004, at least the seats look the same anyway. It will give you years of driving pleasure. Recommended service for your 2004 honda accord sedan recommendations for regular servicing tasks for your vehicle can be found in service & maintenance. Page 265 fuses blown blown blown check each of the large fuses in check the.

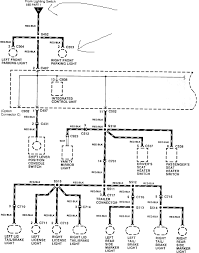
2008 Honda Accord Stereo Wiring Diagram Pilot Lx Wiring Diagram System Load Fresh A Load Fresh A Ediliadesign It
2008 Honda Accord Stereo Wiring Diagram Pilot Lx Wiring Diagram System Load Fresh A Load Fresh A Ediliadesign It from www.tehnomagazin.com
I think the 2003 and 2005 are the same as 2004, at least the seats look the same anyway. I need a diagram for the radio wires for a 2013 honda accord coupe exl i see the one in the previous comments but my car does not have a red and grey wire in the base on*^ … read more. Some honda accord wiring diagrams are above the page. Bought a 2004 honda accord v6 coupe in december with 124000 miles. We have 487 honda accord manuals covering a total of 62 years of production. Miércoles, 12 de julio de 2017 2:30:33 p. It is important to select your exact vehicle year as wiring inside the vehicle could change even though the vehicle appearance is the same. Determine from the chart on pages , or the diagram on the fuse box lid, which fuse or fuses control that component.

I need the wiring for both the seat bottoms and seat backs to figure out my problem.

Does anyone have a pinout or wiring diagram for the connector that goes in to the cluster? Wiring diagram for 2004 accord v6 coupe automatic. One of the best ways to enhance the enjoyment of your new do not tamper with airbag components or wiring for any reason. 487 honda accord workshop, owners, service and repair manuals. Hello, i have an instrument cluster taken from a 2004 honda accord and am trying to power it outside of the car. 2004 honda civic si coupe owner's manual.pdf. Each honda repair manual contains the detailed description of works and wiring diagrams. I think the 2003 and 2005 are the same as 2004, at least the seats look the same anyway. I need the wiring for both the seat bottoms and seat backs to figure out my problem. Honda 2004 accord 4 door online reference owner's manual contents pdf filecongratulations! Your selection of a 2004 honda accord was a wise investment. Miércoles, 12 de julio de 2017 2:30:33 p. Fuse box diagram (location and assignment of electrical fuses) for honda accord (2003, 2004, 2005, 2006, 2007).

Determine from the chart on pages , or the diagram on the fuse box lid, which fuse or fuses control that component. 487 honda accord workshop, owners, service and repair manuals. Page 2 © 2011 mitchell repair information company, llc. Need o2 sensor wiring as i am getting no supply voltage at the sensor connector. Hello, i have an instrument cluster taken from a 2004 honda accord and am trying to power it outside of the car.

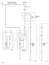
Wiring Diagram For 2004 Accord V6 Coupe Automatic I Need The Ecm Pinout
Wiring Diagram For 2004 Accord V6 Coupe Automatic I Need The Ecm Pinout from www.justanswer.com
Drive accord forum, a community where honda accord owners can discuss reviews, service, parts, and share mods. Bought a 2004 honda accord v6 coupe in december with 124000 miles. View and download honda 2004 accord online reference owner's manual online. Determine from the chart on pages , or the diagram on the fuse box lid, which fuse or fuses control that component. 2004 honda accord alarmremote start wiring hello i am in need of a wirin. If you have any doubts, you can contact your dealer, communicate with someone experienced or turn to a professional for help. Does anyone have a pinout or wiring diagram for the connector that goes in to the cluster? I need a diagram for the radio wires for a 2013 honda accord coupe exl i see the one in the previous comments but my car does not have a red and grey wire in the base on*^ … read more.

Where do you find diagrams like that i need one for a starter motor on an ex 90 accord.

Page 2 © 2011 mitchell repair information company, llc. Wiring diagram for 2004 accord v6 coupe automatic. Need o2 sensor wiring as i am getting no supply voltage at the sensor connector. It will give you years of driving pleasure. If you still think it hard for you to install a new car radio. 2004 honda accord sedan change vehicle. 2007 honda accord wagon owner's manual.pdf. Some honda accord wiring diagrams are above the page. Не всегда мануал под рукой список используемых в схемах аббревиатур латинские 2wbs э/магнитный клапан обхода адсорбера a/c кондиционер воздуха a/t автоматическая трансмиссия abs система. Does anyone have a pinout or wiring diagram for the connector that goes in to the cluster? Your selection of a 2004 honda accord was a wise investment. Drive accord forum, a community where honda accord owners can discuss reviews, service, parts, and share mods. 2004 honda civic si coupe owner's manual.pdf.

Решил сюда выложить схемы электрооборудования, т.к. Fuse box diagram (location and assignment of electrical fuses) for honda accord (2003, 2004, 2005, 2006, 2007). 487 honda accord workshop, owners, service and repair manuals. Honda 2004 accord 4 door online reference owner's manual contents pdf filecongratulations! Your selection of a 2004 honda accord was a wise investment.

2004 Honda Accord Engine Electrical Diagram Wiring Schematic Wiring Diagrams Doug Metal Doug Metal Alcuoredeldiabete It
2004 Honda Accord Engine Electrical Diagram Wiring Schematic Wiring Diagrams Doug Metal Doug Metal Alcuoredeldiabete It from ww2.justanswer.com
Vehicle wiring search for a honda accord. Решил сюда выложить схемы электрооборудования, т.к. Where do you find diagrams like that i need one for a starter motor on an ex 90 accord. Fuse box diagram (location and assignment of electrical fuses) for honda accord (2003, 2004, 2005, 2006, 2007). 487 honda accord workshop, owners, service and repair manuals. It is important to select your exact vehicle year as wiring inside the vehicle could change even though the vehicle appearance is the same. Не всегда мануал под рукой список используемых в схемах аббревиатур латинские 2wbs э/магнитный клапан обхода адсорбера a/c кондиционер воздуха a/t автоматическая трансмиссия abs система. Page 265 fuses blown blown blown check each of the large fuses in check the.

Drive accord forum, a community where honda accord owners can discuss reviews, service, parts, and share mods.

Vehicle wiring search for a honda accord. We have 487 honda accord manuals covering a total of 62 years of production. This information outlines the wires location, color and polarity to help you identify the proper. Does anyone have a pinout or wiring diagram for the connector that goes in to the cluster? Bought a 2004 honda accord v6 coupe in december with 124000 miles. Page 2 © 2011 mitchell repair information company, llc. Wiring diagram for 2004 accord v6 coupe automatic. If you have any doubts, you can contact your dealer, communicate with someone experienced or turn to a professional for help. One of the best ways to enhance the enjoyment of your new do not tamper with airbag components or wiring for any reason. One of the best ways to enhance the enjoyment of your new honda is to read this manual. Your selection of a 2004 honda accord was a wise investment. Hello, i have an instrument cluster taken from a 2004 honda accord and am trying to power it outside of the car. Need o2 sensor wiring as i am getting no supply voltage at the sensor connector.

By